Uni Complex là dự án nhà phố shophouse tọa lạc tại trung tâm phường Phú Hòa, TP Thủ Dầu Một, tỉnh Bình Dương, do Công ty CP Kinh doanh và Phát triển Bình Dương (TDC) làm chủ đầu tư, Lộc Phát Land đồng hành phát triển trên vai trò đại lý tư vấn chiến lược.
Vị trí dự án
Dự án Uni Complex Becamex nằm ngay góc đường An Dương Vương – Bùi Thị Xuân, thuộc phường Phú Hòa, TP Thủ Dầu Một.
Đây là vị trí tâm điểm kết nối toàn diện các vùng kinh tế trọng điểm phía Nam, thông các tuyến đường huyết mạch như: Quốc lộ 13, đường Vành đai 4, cao tốc Mỹ Phước – Tân Vạn, cao tốc TP.HCM – Thủ Dầu Một – Chơn Thành…

Từ đây cư dân dễ dàng tiếp cận đến đầy đủ tiện ích, dịch vụ hàng đầu của khu vực như:
- 1 phút: Trung tâm thương mại Bình Dương
- 5 phút: Trung tâm chính trị – hành chính Bình Dương, Trung tâm văn hoá Bình Dương
- 10 phút: Trung tâm thể thao Bình Dương
- 20 phút: TP Thủ Đức và chỉ 40 phút đến Sân bay Tân Sơn Nhất….

Bên cạnh đó, dự án còn nằm đối diện Khu công nghiệp VSIP II. Điều này giúp Uni Complex không những trở thành nơi an cư lý tưởng cho cộng đồng người lao động, chuyên gia, kỹ sư trong và ngoài nước đang làm việc tại đây, mà còn đem đến tiềm năng đầu tư sinh lời trong tương lai.
Tiện ích & mặt bằng
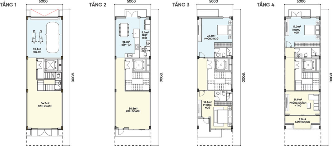
Trên tổng diện tích rộng 161.928 m2, dự án Uni Complex được quy hoạch gồm 102 căn nhà phố shophouse. Chiều cao 3-4 tầng, diện tích đất từ 95-105m2, diện tích sàn xây dựng từ 257-341m2.
Điểm nổi bật ở đây là các căn đều có 2 mặt tiền giúp gia tăng giá trị kinh doanh thương mại cho gia chủ.




Chính sách ưu đãi
Trong bối cảnh nguồn cung các dự án nhà phố quy hoạch chỉnh chu và pháp lý đầy đủ tại Bình Dương còn khá hạn chế, thì Uni Complex là một điểm sáng, rất đáng để tham khảo.
Chỉ cần thanh toán 20%, khách hàng có thể sở hữu ngay, số còn lại được ngân hàng BIDV hỗ trợ cho vay, lãi suất ưu đãi 0% đến khi nhận nhà.
Bên cạnh đó, chủ đầu tư còn có chính sách chiết khấu 1% cho khách hàng có hộ khẩu hoặc làm việc tại Bình Dương, chiết khấu lên tới 4% cho khách hàng thanh toán nhanh.
Quý khách cần thêm thông tin và chính sách bán hàng ưu đãi mới nhất từ chủ đầu tư, hãy liên hệ ngay với Lộc Phát Land qua hotline 0933.247.166 / 1900.63.83.16 hoặc gửi nhanh đăng ký hỗ trợ miễn phí!













Gọi ngay
Chat Zalo